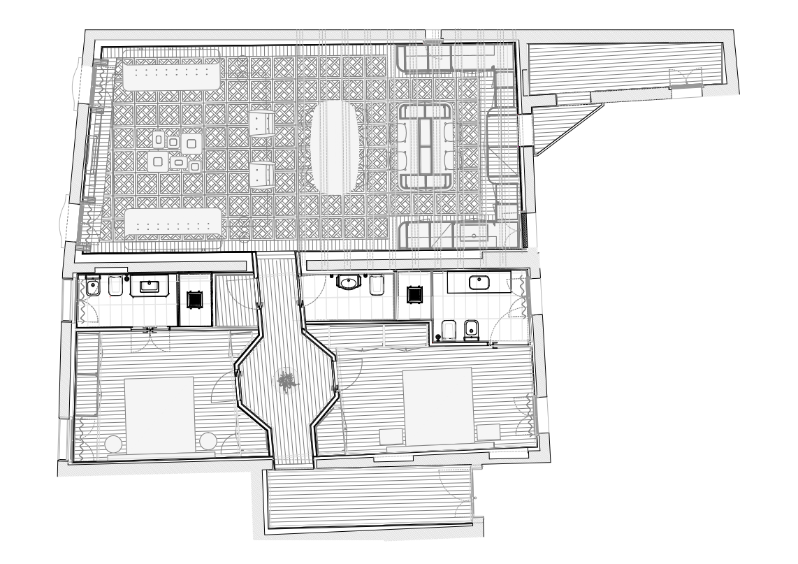
Nel cuore del suggestivo quartiere Ghetto di Padova, proponiamo in vendita un appartamento unico di mq. 162, oggetto di una ristrutturazione di altissimo livello firmata dall’Arch. Simone Squarcina.
Situato al terzo piano di un elegante palazzo dotato di ascensore, l’immobile si distingue per un ingresso raffinato che conduce a un ampio e luminoso open space, perfetto per momenti di convivialità e relax. La zona living, caratterizzata da materiali di pregio e soluzioni architettoniche ricercate, offre comfort e stile senza compromessi.
La proprietà dispone di due spaziose camere da letto, guardaroba, tre bagni elegantemente rifiniti e una pratica lavanderia pensata per la massima funzionalità.
Ogni dettaglio dell’appartamento è stato studiato per garantire privacy, comfort e un’esperienza abitativa di alto profilo.
L’ubicazione è strategica: a pochi passi dai principali servizi, vie dello shopping, ristoranti e luoghi di interesse culturale.
La soluzione ideale per chi desidera vivere immerso nella storia e nell’eleganza del centro di Padova, senza rinunciare alla tranquillità.
Possibilità acquisto posti auto coperti.
Se siete alla ricerca di una dimora esclusiva che coniuga arte, design contemporaneo e tutte le comodità della vita urbana, questa è la vostra occasione.
Ora chiamaci allo 049 876 67 70 oppure contattaci via whatsapp al 392 28 70 378!!
Se hai poco tempo a disposizione clicca sul nostro sito www.angelopellegrino.it ed inviaci un messaggio: TI RICHIAMEREMO NOI!





